LES TOLOCHINOIS SONT-ILS PRIS POUR DES POMMES ?


Il y a environ 1 mois (mars 2024), 10'640 arbres fruitiers ont été plantés sur la parcelle qui fait face au pavillon Audrey Hepburn. Ce qui suppose que cette parcelle demeurera agricole et cultivée pour les dix à quinze prochaines années.
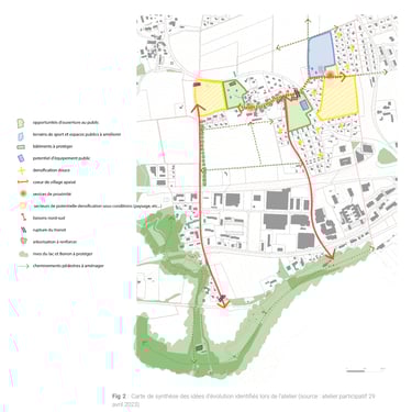
Pourtant, durant les ateliers participatifs du 18 avril 2024, trois projets ont été présentés à la population de Tolochenaz. Sur les trois projets il est question de construire des immeubles, et cela sur cette même parcelle. Dès lors, le citoyen peut légitimement se poser des questions.
D'ailleurs, sur le site de la commune, on peut voir qu’il s’agit d’un secteur de potentielle densification.
Source : synthèse de l’atelier participatif du 29.04.23. Document complet disponible ici



